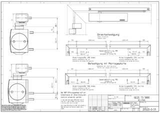
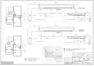
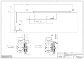
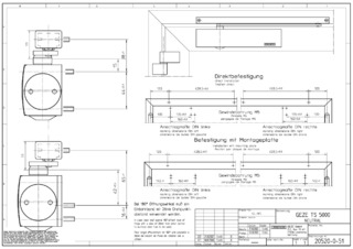
Guide rail 1-leaf

TS 5000 * Overhead door closer with guide rail for single leaf doors with a leaf width up to 1400 mm

TS 5000 door closer TS 5000, overhead door closer with guide rail for 1-leaf doors
  • Closing force of EN 2-6 with variable adjustment
  • Can be used for right and left hand doors without conversion
  • Hydraulic latching action which accelerates the door shortly before it is closed
  • Closing speed can be individually adjusted
  • Integrated back check, slows down doors that are thrown open forcefully
  • Visual closing force display for easy control of the setting
Show more
  • All functions can be adjusted from the front
Contact us

This overhead door closer for single leaf doors represents clear lines. It is authorised for installation on fire and smoke protection doors.

Application Areas

  • Fire and smoke protection doors
  • Right and left single-action doors
  • Single-action doors up to 1400 mm leaf width
  • Door leaf installation hinge side and transom installation opposite hinge side

Technical data

TS 5000
Closing force in accordance with EN 1154 EN 2 - 6
Barrier-free in accordance with DIN 18040 up to leaf width (max.) in mm 1100 mm
Leaf width (max.) 1400 mm
Type of installation Door leaf installation hinge side, Transom installation opposite hinge side
Opening angle (max.) 180 °
Suitability for fire protection doors Yes
Closing force adjustable Yes, stepless
Adjustable closing speed Yes
Latching action adjustable Yes, via valve
Back check integrated Yes, hydraulically adjustable
Position of closing force adjustment Front
Visual closing force display Yes
Hold-open function Optional

Downloads

Variants & Accessories

Contact

GEZE Sales +45 46 32 33 24 GEZE Service +45 70 20 26 62