TS 5000 L ECline * Overhead door closer with guide rail, for opposite hinge side, for accessible single leaf doors of up to 1250 mm leaf width with opening support
- Closing force of EN3-5 with variable adjustment
- Barrier-free in accordance with DIN 18040 up to EN5 (1250 mm leaf width)
- Can be used for right and left hand doors without conversion
- Opening assistance for easy opening and comfortable passing of the door
- Opening assistance can be switched off for doors with wind load or pressure differences
- Hydraulic latching action which accelerates the door shortly before it is closed
- Closing speed can be individually adjusted
- Integrated back check, slows down doors that are thrown open forcefully
- Visual closing force display for easy control of the setting
- All functions can be adjusted from the front
Application Areas
- Fire and smoke protection doors
- Right and left single-action doors
- Single-action doors up to 1250 mm leaf width
- Door leaf installation opposite hinge side and transom installation hinge side
- Access for all in accordance with DIN 18040 up to EN5
Installation situations in reference objects and videos
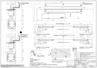
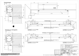
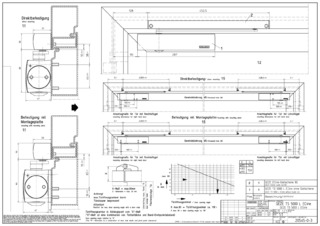
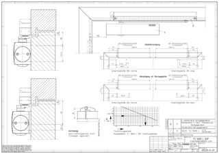
Technical data
| TS 5000 L ECline | |
| Closing force in accordance with EN 1154 | EN 3 - 5 |
| Barrier-free in accordance with DIN 18040 up to leaf width (max.) in mm | 1250 mm |
| Leaf width (max.) | 1250 mm |
| Type of installation | Transom installation hinge side, Door leaf installation opposite hinge side |
| Opening angle (max.) | 180 ° |
| Suitability for fire protection doors | Yes |
| Closing force adjustable | Yes, stepless |
| Adjustable closing speed | Yes |
| Latching action adjustable | Yes, via valve |
| Back check integrated | Yes, hydraulically adjustable |
| Integrated opening assistance | Yes |
| Position of closing force adjustment | Front |
| Visual closing force display | Yes |
| Hold-open function | Optional |
Downloads
LABELLING OBLIGATION: © GEZE GmbH
Variants & Accessories
* Notice about the products displayed
The products mentioned above may vary in form, type, characteristics and function (design, dimensions, availability, approvals, standards etc.) depending on the country. For questions please contact your GEZE contact person or send us an E-Mail .