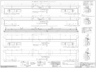
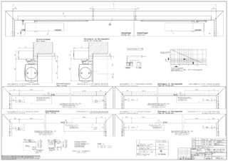
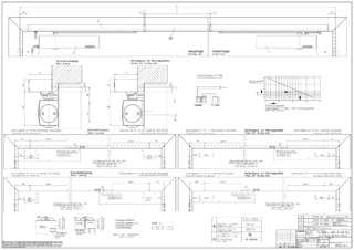
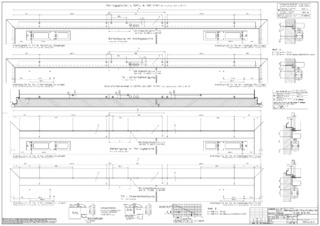
TS 5000 L-E-ISM VPK * Overhead door closer system with guide rail, for opposite hinge side, for double leaf doors with anti-panic function, closing sequence control and electrical hold-open device
- Supply voltage 24 V DC
- Retention force of the electromechanical hold-open device can be variably adjusted
- Height compensation of +/- 2 mm possible
- Closing sequence control holds the active leaf in the waiting position until the passive leaf is closed
Application Areas
- Double leaf doors with closing sequence control
- Hold-open systems with integrated hold-open device
- Installation on the opposite hinge side
- Right and left single-action doors
- Symmetrical and asymmetrical division of door possible
Technical data
| TS 5000 L-E-ISM VPK | |
| Leaf width (max.) | 1400 mm |
| Identical design for DIN left and DIN right | Yes |
| Input voltage | 24 V DC |
| Electrical power consumption | 4.8 W |
| Duty rating | 100 % |
| Residual ripple | 20 % |
| IP rating | IP43 |
| Minimum hinge clearance | 1300 mm |
| Minimum passive leaf width | 380 mm |
| Standard conformity | EN 1154:1996/A1:2002/AC:2006, EN 1155, EN 1158 |
| Length | 2730 mm |
| Width | 55 mm |
| Height | 30 mm |
| opening restrictor upgradable | Yes |
| Hold-open device on the active leaf / passive leaf | Yes / Yes |
| Hold-open device can be overridden | Yes |
| Hold-open range | 80 ° |
| Closing sequence control integrated | Yes |
| Height correction possible | Yes |
| Flexible opening restrictor | Yes |
Downloads
LABELLING OBLIGATION: © GEZE GmbH
Variants & Accessories
* Notice about the products displayed
The products mentioned above may vary in form, type, characteristics and function (design, dimensions, availability, approvals, standards etc.) depending on the country. For questions please contact your GEZE contact person or send us an E-Mail .