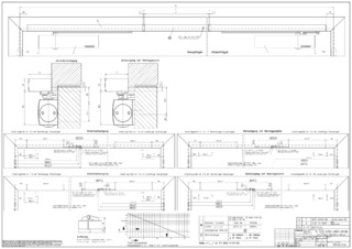
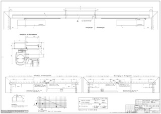
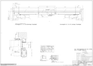
TS 5000 L-ISM ECline * Overhead door closer system with guide rail for barrier-free, easy-to-open double leaf doors up to 1250 mm leaf width in accordance with DIN 18040 with integrated closing sequence control
- System with two door closers TS 5000 ECline and an ISM guide rail assembly
- Barrier-free in accordance with DIN 18040 up to EN 5 (1250 mm leaf width)
- Closing force of EN 3-5 with variable adjustment
- Can be used for right and left hand doors without conversion
- Closing sequence control holds the active leaf in the waiting position until the passive leaf is closed
- Hydraulic latching action which accelerates the door shortly before it is closed
- Closing speed can be individually adjusted
- Integrated back check, slows down doors that are thrown open forcefully
- Visual closing force display for easy control of the setting
- All functions can be adjusted from the front and less installation time compared to standard systems
Application Areas
- Fire and smoke protection doors
- Right and left double leaf single-action doors
- Symmetrical and asymmetrical division of door possible
- Single-action doors up to 2500 mm hinge clearance and 1250 mm leaf width
- Minimum hinge clearance 1300 mm, minimum width of passive leaf 400 mm
- Door leaf installation opposite hinge side
- Access for all in accordance with DIN 18040 up to EN 5
Technical data
| TS 5000 L-ISM ECline | |
| Barrier-free in accordance with DIN 18040 up to leaf width (max.) in mm | 1250 mm |
| Leaf width (max.) | 1250 mm |
| Type of installation | Door leaf installation opposite hinge side |
| Opening angle (max.) | 130 ° |
| Minimum hinge clearance | 1360 mm |
| Minimum passive leaf width | 380 mm |
| Suitability for fire protection doors | Yes |
| Closing force adjustable | Yes, stepless |
| Adjustable closing speed | Yes |
| Latching action adjustable | Yes, via valve |
| Back check integrated | Yes, hydraulically adjustable |
| Position of closing force adjustment | Front |
| Visual closing force display | Yes |
| Hold-open function | Optional |
| Closing sequence control integrated | Yes |
Downloads
Variants & Accessories
* Notice about the products displayed
The products mentioned above may vary in form, type, characteristics and function (design, dimensions, availability, approvals, standards etc.) depending on the country. For questions please contact your GEZE contact person or send us an E-Mail .