Powerchain * Chain drive for large and heavy window elements that need large opening widths
- Fast opening speeds in the event of smoke and heat extraction, even for very heavy windows
- Continuously adjustable drive stroke and individual speeds for ventilation and smoke and heat extraction
- Available as special version - stroke, cable length and colour configurable
- Synchronisation of max. four drives without external control unit
- DIP switches for changing the mode of operation (Solo and Syncro, master, slave)
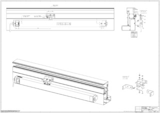
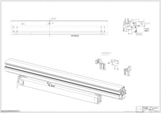
- Fast and easy installation with the Smart fix installation system
- IQ windowdrive - intelligent drive control
- Tested as a natural smoke and heat exhaust ventilation device (SHEV) in accordance with EN 12101-2
Application Areas
- Smoke and heat extraction system and natural ventilation (24 V) in the façade and roof area
- Can be used in the exhaust air and air inlet system
- Inward- and outward-opening windows with bottom-hung, top-hung and side-hung leaves
- Roof window
- Installation on wooden, PVC or metal windows
- Leaf and frame installation
- Synchronisation of up to four drives
- System solution in combination with the Power lock locking drive
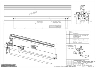
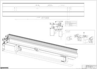
Installation situations in reference objects and videos
Safety note
Falling window leaves can be a considerable risk to life and limb of persons in the vicinity. Therefore, the use of GEZE safety scissors is mandatory when using GEZE drives on bottom-hung windows.
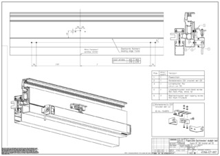
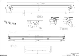
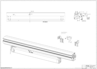
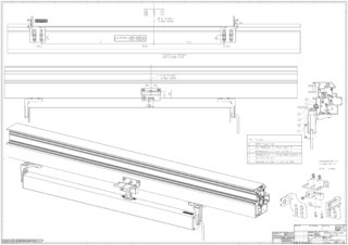
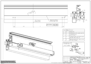
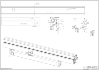
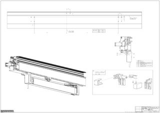
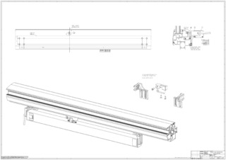
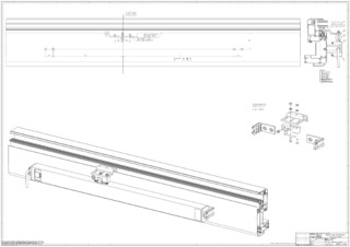
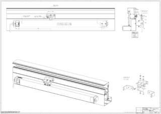
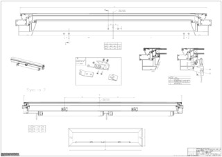
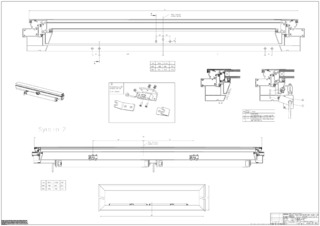
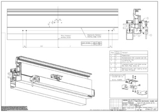
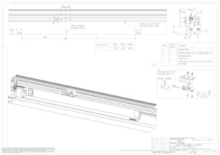
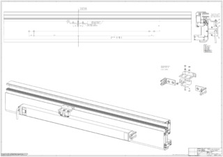
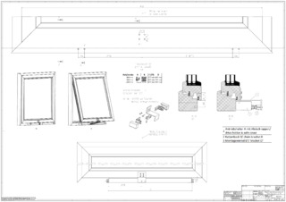
Technical data
| Powerchain | |
| Dimensions | 36 x 51 mm |
| Space needed on frame (min.) | Frame installation inward-opening: 50/61 mm (for swing leaf DIN L), leaf installation inward-opening: 30/41 mm (for swing leaf DIN R), frame installation outward-opening: 50 mm |
| Space requirement on leaf (min.) | Frame installation inward-opening: 40 mm, leaf installation inward-opening: 50 mm Frame installation outward-opening 30/41 mm (for swing leaf DIN R) |
| Opening speed RWA | 15 mm/s |
| Opening speed ventilation | 5 mm/s |
| Closing speed (max.) | 5 mm/s |
| Force of pressure (max.) | 600 N (depending on stroke), see force-path diagram |
| Locking force (max.) | 3000 N |
| Tensile force | 600 N |
| Leaf weight | 200 kg* |
| Overlap area | 0 - 23 mm (depending on the application and bracket set) |
| Voltage at operation | 24 V ± 25 % |
| Operating voltage | 24 V DC |
| Current consumption | 1.5 A |
| Current consumption according to area of application | Ventilation (24 V): 1.2 A; RWA (18 V): 1.5 A |
| Power consumption | 36 W |
| Duty rating | 30 % |
| Special length of connector cable | 5 m, 7.5 m |
| Min. core cross section | 0.75 mm² |
| Number of cores | 4 cores |
| Service temperature | -5 - 70 °C |
| IP rating | IP40 |
| protection rating | III |
| Syncro function | Yes |
| Adjustable opening speed (ventilation) | Yes |
| Additional locking available | Yes |
| Type of additional locking mechanism | Locking drive |
| Type of stroke shortening | Synchronising unit, Factory setting |
| End position cut-off extended | electronic, via internal path sensor |
| End position cut-off retracted | electronically via current consumption |
| Overload cut-off | Yes |
| Complete opening within 60 s | yes, up to 800 mm stroke, including locking drive |
| NSHEV tested | Yes |
| NSHEV additional information | yes, up to 800 mm stroke, including locking drive |
| Number synchronisation drive units | 4 |
| KNX ability | Yes |
| Bottom-hung window INWARD-opening frame installation | Yes |
| Bottom-hung window inward opening leaf installation | Yes |
| Bottom-hung window OUTWARD-opening frame installation | Yes |
| Side-hung window INWARD-opening frame installation | Yes |
| Side-hung window INWARD-opening door leaf installation | Yes |
| Side-hung window OUTWARD-opening frame installation | Yes |
| Top-hung window INWARD-opening frame installation | Yes |
| Top-hung window INWARD-opening leaf installation | Yes |
| Top-hung window OUTWARD-opening frame installation | Yes |
| OUTWARD-opening roof window | Yes |
Downloads
LABELLING OBLIGATION: © GEZE GmbH
Variants & Accessories
* Notice about the products displayed
The products mentioned above may vary in form, type, characteristics and function (design, dimensions, availability, approvals, standards etc.) depending on the country. For questions please contact your GEZE contact person or send us an E-Mail .