RWA K 600 G * Klaparmdrev til montering på vinduer og døre med fast tilknytning ved hjælp af glideskinne
- 90° vinduesåbning på mindre end 60 sekunder
- Stærkt drev med højt drejemoment
- Tilslutningskabel kan nemt udskiftes via stik
- Integreret meldekontakt til tilbagemeldinger
- Integreret Synkro styreenhed, der kan betjene maks. to automatikker uden en ekstern styreenhed
- Kontrolleret som naturlig røg-og varmeaftræksenhed (NRWG) iht. EN 12101-2
Anvendelsesområder
- RWA og naturlig ventilation (24 V)
- Ind- og udadgående vinduer med vippe-, klap- og drejefløje
- Montage på træ-, plast- eller metalvinduer
- Fløj- og rammemontering
- Montage på døren mulig
Indbygningssituationer i referenceobjekter og videoer
Produktspecifikationer
| RWA K 600 G | |
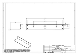
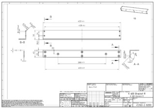
| Dimensioner | 421 x 40 x 86 mm |
| Husmateriale | Aluminium |
| Holdekraft (maks.) | 3000 N |
| Trykkraft | 600 N |
| Trækkraft | 600 N |
| Spænding under drift | 24 V ± 25 % |
| Driftsspænding | 24 V DC |
| Strømforbrug | 1.4 A |
| Ripple | 20 % |
| Nominel driftstid | 30 % |
| Tilslutningskabel længde | 5 m |
| Speciallængde tilslutningskabel | 10 m |
| Min. ledertværsnit | 0.5 mm² |
| Antal ledere | 5 ledere |
| Driftstemperatur | -5 - 75 °C |
| Kapslingsklasse | IP32 |
| Beskyttelsesklasse | III |
| Synkro funktion | Ja |
| Åbningshastighed indstillelig (ventilation) | Ja |
| Ekstra låsning findes | Ja |
| Type ekstra låsning | Låsedrev |
| Type vandringsforkortelse | Indstillingsværdi |
| Slutpositionsafbrydelse kørt ud | Intern forskydningstransducer |
| Slutpositionsafbrydelse kørt ind | Intern forskydningstransducer |
| Overbelastningsafbrydelse | Ja |
| NRWG kontrolleret | Ja |
| Antal synkronstyring på dørautomatikker | 2 |
| Kipvindue INDAD montage modsat hængselsside | Ja |
| Kipvindue INDAD montage hængselsside | Ja |
| Kipvindue UDAD montage modsat hængselsside | Ja |
| Kipvindue UDAD montage hængselsside | Ja |
| Drejevindue INDAD montage modsat hængselsside | Ja |
| Drejevindue INDAD montage hængselsside | Ja |
| Drejevindue UDAD montage modsat hængselsside | Ja |
| Drejevindue UDAD montage hængselsside | Ja |
| Klapvindue INDAD montage modsat hængselsside | Ja |
| Klapvindue INDAD montage hængselsside | Ja |
| Klapvindue UDAD montage modsat hængselsside | Ja |
| Klapvindue UDAD montage hængselsside | Ja |
Downloads
Varianter & Tilbehør
* Note om de viste produkter
Det ovennævnte produkt kan variere i form, type, karakteristika og funktion (design, dimensioner, tilgængelighed, godkendelser, standarder, etc.) afhængigt af landet. Kontakt venligst din kontaktperson hos GEZE ved spørgsmål, eller send os en E-Mail .